






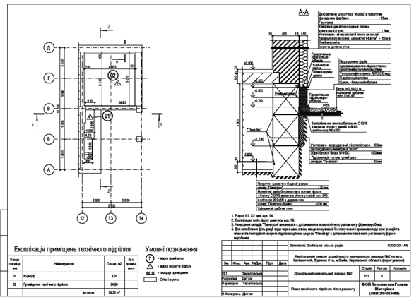
Reconstruction and overhaul projects were implemented taking into account sanitary norms, environmental friendliness of the materials used, requirements for groups of people with limited mobility, landscaping, energy-saving technologies were introduced, constructive solutions for landscaping elements, entrance groups were developed.
Kindergarten #2 in Zmiev. Zmiev. Presented visualization and selected drawings, on request we can send a full project for review.